PLC Interface
SchemELECT
Automate your diagrams with the PLC Interface
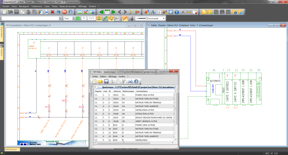
The PLC Module of SchemELECT facilitates the exchange of information with PLC programming consoles. PLC card sheets are automatically generated based on the configuration defined for the PLC. Comments and mnemonics are also graphically integrated on the tracks, based on a spreadsheet file provided by PLC programmers. These tracks can be represented grouped or separately on the diagram, according to your preferences.
Easily navigate between maps with the PLC Interface
A system of dynamic cross-references is implemented to facilitate the localization of the card tracks and PLC cards. This allows you to navigate easily between different elements and quickly identify their respective locations.
Optimise your projects with a module dedicated to the PLC Interface
With the PLC Module of SchemELECT, you benefit from a smooth and automated process to manage exchanges with PLC programming consoles. Information is integrated in a clear and visual manner, providing you with an accurate overview of the configuration of your PLC and its components.
The software in detail
Electrical CAD diagram
With SchemELECT, you can easily create different types of electrical diagrams: distribution, control, power, single-line and multi-line diagrams, etc.
Wire numbering
SchemELECT offers various electrical wire numbering options to meet your specific needs…
Cross-references
SchemELECT offers comprehensive cross-reference management in your file, whether for potential cross-references or different contacts…
Terminal block and cables
The SchemELECT software allows you to create a multi-level wiring diagram that represents your installation and ensures the consistency of interconnections…
Installation of cabinets
The SchemELECT software simplifies hardware layout by providing precise control of space requirements in 2.5 dimensions.
contact us
